Компанія Geberit разом з СANactions (Міжнародна інтердисциплінарна школа з урбаністики) завершила прийом заявок на участь у всеукраїнському конкурсі з розробки концепції сталого громадського вуличного туалету, що буде реалізовано в гідропарку міста Житомир.
До 6 травня журі має обрати 10 найкращих проектів з 28, поданих на конкурс. З 1 по 13 травня на сайті триває онлайн-голосування – переможець отримає грошову винагороду. Станом на 12.00 5 травня визначилися лідери глядацьких симпатій: три проекти вже набрали більше 100 "лайків".
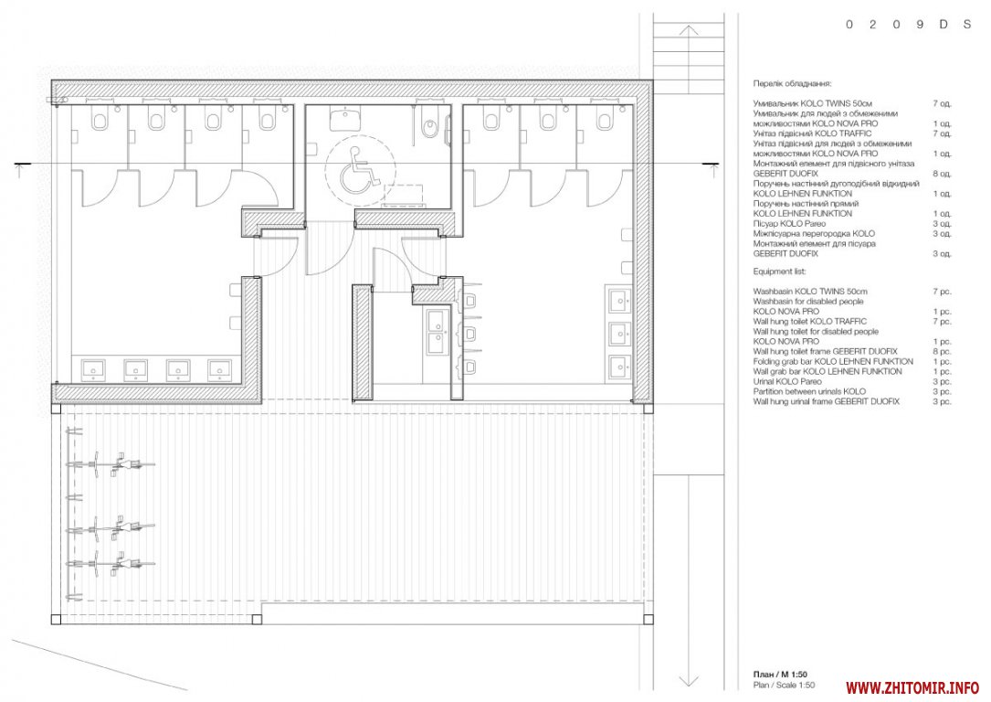
З роботами учасників можна ознайомитися тут
Нагадаємо, призовий фонд становить:
І місце – 30 тис. грн та реалізація проекту;
ІІ місце – 15 тис. грн;
ІІІ місце – 7 тис. грн;
приз глядацьких симпатій – 5 тис. грн.
Як повідомляв Житомир.info, у березні цього року житомирян запрошували до участі в конкурсі на кращий дизайн громадського туалету в гідропарку
Проект, який набрав 172 "лайки"



Проект, у якого 128 "лайків"




Проект, який набрав 119 "лайків"



Проект, який наближається до лідерів - 99 "лайків"

























