11 февраля на сайте объявлений появилась информация о продаже за 700 тысяч долларов земельного участка на ул. Жукова, 25а в Житомире, на котором собирались строить многоэтажки.
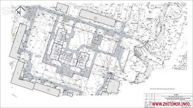
«Участок размером 0,93га (93 сотки) в собственности ООО. Целевое назначение - "многоэтажное жилое строительство". Сделаны топогеодезические работы и работы по инженерно-геологическим условиям площадки. Имеются эскизные проекты. Способ продажи: 1) продажа земельного участка или 2) продажа корпоративных прав ООО», – говорится в объявлении.
Руководитель отдела продаж «Набережного квартала» в Житомире рассказал Житомир.info, что строительства не будет, так как местные жители против.
«Я точно не знаю, почему нам запретили строить: то ли близко к реке, к Каменке, и может быть движение земли, смещение. Это одно из мнений. Люди начали выступать против, партия какая-то начала выступать, что, если вы хотите здесь строить, то давайте делитесь. Строить вроде бы как не будем, но об этом больше знают мои руководители, которые были на встрече с мэром. В общем, все против строительства», – рассказал руководитель отдела продаж «Набережного квартала» Валентин.
Также Житомир.info связался с представителем компании «Мост-Инвест», которая выставила участок на продажу.
«Этот участок продает компанией Мост-Инвест. «Набережный квартал» действительно там собирался строить, но у него получились какие-то недоразумения с мэром. Я тоже присутствовал при этом лично. Мэр сказал, что он «Набережному кварталу» не позволит строить. Позвоните и спросите у мэра. Мы этот участок в 2005 году купили на аукционе, которое проводила мэрия, и кто больше заплатит денег, и целевое его назначение было "многоэтажное строительство". Если сейчас не разрешают строить, то зачем было нам его продавать на аукционе», – сказал Егор.
Как сообщал Житомир.info, жители на улице Жукова уже несколько месяцев не дают предпринимателям начать строительство, так как новый дом хотят возводить менее чем за 200 метров от обрыва. В свою очередь, застройщики опирались на геологические исследования и уверяли, что строить можно.






















