Сучасне приміщення, у якому зможуть навчатися 295 учнів – таким має стати новий корпус міської гімназії № 3.
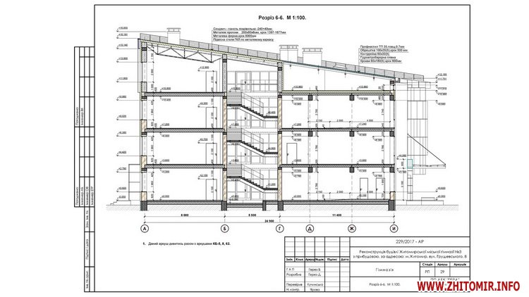
6 квітня у Житомирі презентували проект будівництва корпусу і розповіли про основні переваги, які матиме будівля: школа отримає 20 сучасних класних кімнат, нову їдальню площею 350 кв. м, харчоблок та універсальну спортивну залу завбільшки 260 кв. м. Крім того, школярі отримають творчі майстерні, де зможуть проводити дозвілля.
Міський голова Сергій Сухомлин, заступник директора департаменту містобудування та земельних відносин Житомирської міської ради Євгенія Черкасова, заступник Мера Матвій Хренов та директор гімназії №3 Марія Дорошко детально розповіли, як виглядатиме новий корпус.
Зараз загальна площа міської гімназії №3 становить 2480 кв. м. Новий корпус становитиме 2859 кв.м. Тобто, площа школи становитиме 5339 кв. м.
У Житомирі сучасне приміщення школи будується вперше за 25 років. Загальна вартість реконструкції будівлі становить понад 35 млн 102 тис грн.
Як повідомляв Житомир.info, у червні 2016 року на несучій стіні Житомирської міської гімназії №3, що по вулиці М. Грушевського (колишня Котовського), будівельники виявили величезну тріщину та визнали будівлю аварійною. При цьому житомирська влада заповзялася до 1 вересня відновити навчання в дві зміни у закладі. Разом із тим заступник міського голови Матвій Хренов серед дострокових планів, пов’язаних із гімназією, визначив розробку проекту та будівництво її нового корпусу.































