На черговому засіданні консультативної ради з питань охорони культурної спадщини при управлінні культури та туризму Житомирської обласної державної (військової) адміністрації, яке відбулося 13 січня 2026 року, обговорили ключові проєкти реставрації, оновлення меж охоронних зон у центральній частині Житомира, а також питання вшанування пам’яті видатних діячів краю.
Про це 14 січня повідомило управління культури та туризму ОДА.
«У засіданні також взяли участь представники профільних відомств та активісти громадської організації «Локація». Залучення громадського сектору забезпечило відкритість та прозорість процесу ухвалення рішень. Головний акцент дискусії було зроблено на необхідності оновлення підходів до регулювання та управління об’єктами культурної спадщини на рівні територіальних громад. Учасники наголосили: збереження пам’яток – це не лише консервація минулого, а й інтеграція історичних об’єктів у сучасний міський простір», - йдеться у повідомленні.
Ключові питання порядку денного:
1. Захист історичного центру Житомира
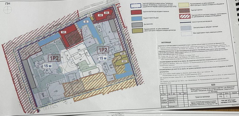
Рада розглянула науково-проєктну документацію щодо визначення меж і режимів використання зон охорони пам’яток архітектури в межах кварталу вулиць Театральної, Київської, Михайлівської та Скорульського.
Прийнято рішення:
зберегти обмеження допустимої висоти забудови до 15 метрів для нового будівництва та реконструкції існуючих об’єктів відповідно до «Історико-архітектурного опорного плану м. Житомира з визначенням історичного ареалу», затвердженого наказом Міністерства культури України від 21.01.2016 № 18;
доопрацювати історичну довідку в частині історичної відповідності.
За пропозицією розробника розгляд документації перенесено для доопрацювання.
Окремо розглянуто питання реставрації Свято-Михайлівської церкви. Обговорено відновлення історичної дзвіниці пам’ятки архітектури місцевого значення, розташованої на вул. Київській, 18. Документацію буде повторно направлено до Міністерства культури України, що є важливим кроком до повернення храму його первісного вигляду.
2. Розвиток інфраструктури: Коростень та Житомирський район
Радою розглянуто та погоджено: коригування проєкту будівництва хірургічного корпусу та палатно-реабілітаційного відділення Коростенської міської лікарні; детальний план території земельної ділянки за межами населеного пункту с. Йосипівка Житомирського району з метою зміни цільового призначення із земель для ведення товарного сільськогосподарського виробництва на землі для розміщення та експлуатації будівель і споруд підприємств переробної, машинобудівної та іншої промисловості.
3. Вшанування пам’яті Наталії Скорульської
Підтримано звернення Житомирської обласної філармонії ім. С. Ріхтера щодо перенесення меморіальної дошки видатній балетмейстерці та педагогині Наталії Скорульській на фасад будівлі філармонії.
Детальніше про розгляд питання про науково-проєктну документацію щодо визначення меж і режимів використання зон охорони пам’яток архітектури кварталу, обмеженого вулицями Театральна, Київська, Михайлівська, Скорульського в Житомирі розповіла 14 січня ГО «Локація».
«Забудовник разом з розробником, Євгенією Черкасовою, представили дане питання, яке передбачало зняття висотних обмежень у частині кварталу вказаних вище вулиць, у безпосередній близькості до памʼяток архітектури Михайлівського собору, «Готелю», однієї пам’ятки історії та історичної забудови рекомендованої до статусу пам’яток архітектури. За чинним історико-архітектурним опорним планом ця ділянка знаходиться у зоні суворого регулювання забудови, де висотні обмеження становлять 15 метрів, а відповідно до генерального плану забудова передбачена малої та середньої поверховості (до 5 поверхів). На засіданні забудовник обґрунтовував необхідність зняття обмежень тим, що вони заважають новому будівництву, не створюватимуть фонових конфліктів для пам’яток, а в зонінгу висотних обмежень немає. (При цьому замовчувалось, що зонінг передбачає планувальні обмеження та спеціальні обмеження для об’єктів культурної спадщини.)», - йдеться у повідомленні.


Зазначається, що розробником є Євгенія Черкасова з «АРХ-студіо» (колишня головна архітекторка Житомира: була призначена головним архітектором Житомира в березні 2014 року і працювала до липня 2017 року).
На засіданні члени консультативної ради не дійшли до остаточного висновку, і документацію було направлено на допрацювання, хоча більшість експертів були категорично проти.
«Забудовник наразі не повідомляє конкретні плани щодо об’єкта, відомо лише, що передбачені комерційні приміщення з житловою площею на верхніх поверхах. Наша громадська організація продовжує моніторинг ситуації та тримає незмінну позицію щодо дотримання чинних обмежень, захисту культурної спадщини та недопущення нівелювання чинної містобудівної документації», - наголошують в ГО «Локація», яка була зареєстрована у 2024 році, керує нею житомирська художниця Анастасія Сладковська.
Нагадаємо, в квітні 2025 року Житомирська міська рада ухвалила рішення про розроблення детального плану території кварталу, обмеженого вулицями Театральною, Київською, Михайлівською та проїздом Скорульського. Фінансування робіт здійснювалося за рахунок ТОВ «К12 Авеню», яке 7 лютого 2025 року стало переможцем аукціону з продажу комплексу будівель загальною площею 1511,9 кв.м, які знаходяться у Житомирі на вулиці Київській, 12, поряд зі Свято-Михайлівським кафедральним собором, наприкінці лютого 2025 року з ТОВ уклали договір купівлі-продажу за 18 млн грн.
Як повідомляв Житомир.info, в січні 2024 року у житомирському Свято-Михайлівському кафедральному соборі, який знаходиться на розі вулиць Київської і Михайлівської, завершили розпис великої зали. Станом на початок 2026 року у соборі завершили розпис притвору й замінили вхідні двері.




















