У Житомирі на Смолянському військовому кладовищі перемістять пам’ятник радянському солдату, який зараз стоїть в центрі, напроти входу.
Відповідний проєкт рішення виконкому «Про погодження проведення благоустрою території» оприлюднили на сайті міської ради 20 березня.
«Розглянувши звернення Житомирського міського центру соціальних служб міської ради від 17.02.2023 №204, управління комунального господарства міської ради від 17.02.2023 №204/01-25 та лист управління культури та туризму Житомирської обласної державної адміністрації від 15.03.2023 №332-1.18/04-23 виконавчий комітет міської ради вирішив погодити комунальному підприємству «Спеціалізований комбінат комунально-побутового обслуговування» міської ради проведення благоустрою території з перенесенням пам`ятника на Смолянському військовому кладовищі міста Житомира за адресою вул. Селецька, 9 згідно з схемою, що додається, з дотриманням норм, правил та державних стандартів», - йдеться у проєкті рішення.
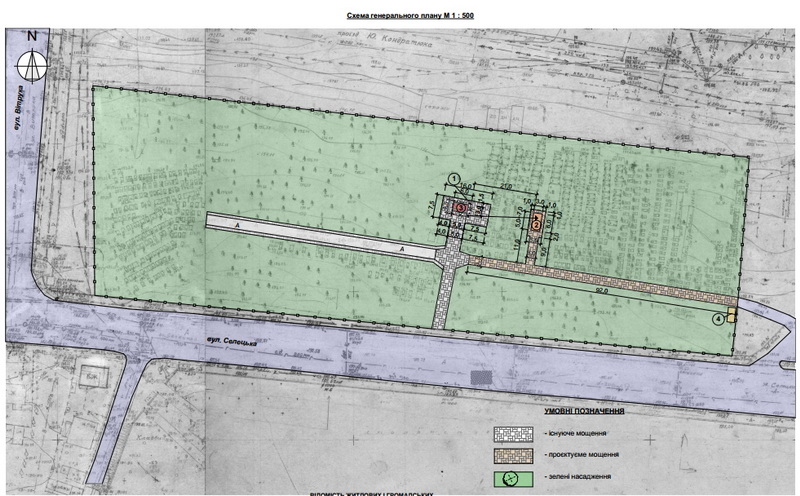
На схемі у додатку видно, що пам’ятник радянському солдату планують перемістити правіше від його нинішнього місця розташування.

Нагадаємо, про переміщення пам’ятника, який стоїть в центрі військового кладовища, говорили на засіданні міськвиконкому 21 грудня 2022 року: мер пояснював, що пам’ятник треба перенести і на його нинішньому місці проводити заходи з вшановування пам’яті загиблих воїнів, щоб не стояти, як зараз, спиною до могил захисників.
Як повідомляв Житомир.info, на засіданні виконавчого комітету Житомирської міської ради 7 вересня 2022 року затвердили уніфікований ескіз, за яким на Смолянському військовому кладовищі встановлюватимуть пам’ятники загиблим захисникам.




















