Після підписання меморандуму на рівні міністерств у Житомирі мають ще підписати договір з представниками Литви щодо відбудови ліцею №25.
Про це 14 липня в коментарі Житомир.info повідомила перша заступниця мера Житомира Світлана Ольшанська.
«Наразі угоди підписані на рівні двох міністерств – Міністерства закордонних справ Литви та Міністерства освіти і науки України. Ми провели відповідні зустрічі з представниками Литви щодо подальшої відбудови ліцею №25. Наразі вони теж розробляють для України типові проєкти шкіл для відбудови. Буде також підписаний договір про відбудову між містом і представниками Литви, там буде визначений замовник будівництва і прописано все, що стосується безпосередньо процесу відбудови. Загальної вартості поки немає, тому що немає проєктно-кошторисної документації. 17 мільйонів євро – це зарезервовані кошти на відбудову і створення сучасного освітнього простору у Житомирі, їх має вистачити на відбудову», - сказала Світлана Ольшанська.
За її словами, на осінь цього року запланована зустріч у Житомирі з представниками Литви після якої буде підписаний договір, а вже потім запустять процес відбудови. Перший крок – розроблення проєктно-кошторисної документації.
«Навіть коли буде типовий проєкт, затверджений на рівні державних органів, його треба буде прив’язати до місцевості», - пояснила перша заступниця мера Житомира.
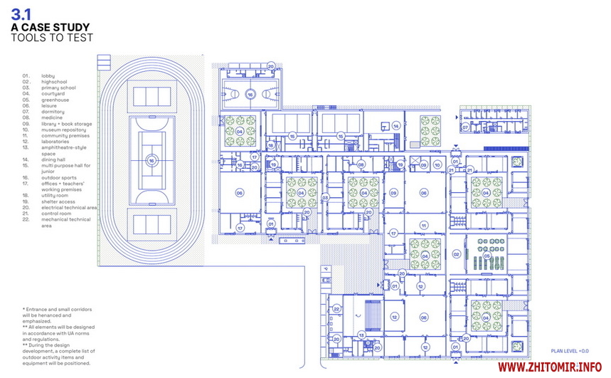
Пресслужба Міністерства освіти і науки повідомила, що відповідно до підписаного меморандуму Литва виділить 21 мільйон євро для реалізації ініціатив, спрямованих на відновлення інфраструктури, поліпшення результатів навчання та модернізацію освітніх послуг для дітей та молоді в Україні. Основна інвестиція в розмірі 17 мільйонів євро буде спрямовано на будівництво сучасної багатофункціональної школи-хабу в Житомирі за проєктом «Школа майбутнього для України», розробленим італійськими й українськими архітекторами.
«Проєкт є переможцем міжнародного архітектурного конкурсу, ініційованого Литвою у 2023 році. Будівництво школи стане першим освітнім проєктом в Україні, створеним за принципами Нового європейського Баугаузу (NEB). Готовий до використання дизайн-проєкт буде також доступний громадам на безоплатній основі. Він передбачає будівництво інноваційних шкіл, обладнаних для роботи як у мирний, так і у воєнний час. Меморандум також передбачає виділення 3 мільйонів євро на встановлення сонячних енергетичних систем для шкіл і дитячих садків. Системи встановлять для 14 закладів освіти в Київській, Одеській, Дніпропетровській, Житомирській, Чернігівській, Харківській та Чернівецькій областях. Завдяки цим системам робота шкіл та садків триватиме без перебоїв. Це також дасть змогу зменшити довгострокові витрати на електроенергію», - йдеться у повідомленні.
Нагадаємо, колишній мер Житомира, голова Державного агентства відновлення та розвитку інфраструктури України Сергій Сухомлин 10 липня 2025 року, після завершення другого дня роботи Ukraine Recovery Conference, поінформував, що уряд Литви офіційно підтвердив фінансування відбудови ліцею №25 у Житомирі. У меморандумі, які підписали представники Міносвіти та уряду Литви, передбачено 17 мільйонів євро на будівництво сучасної багатофункціональної школи-хабу в Житомирі.
Як повідомляв Житомир.info, 4 березня 2022 року ворожий авіаудар зруйнував будівлю ліцею №25 в центрі Житомира, 20 червня 2025 року розпочали демонтаж зруйнованої будівлі ліцею. Переможцем тендеру управління капітального будівництва Житомирської міської ради на демонтаж будівлі ліцею № 25 на вул. Мала Бердичівська, 18 стало зареєстроване в Одесі ТОВ «Укр Буд Відновлення» з пропозицією 10,2 млн грн, демонтажні роботи мають завершити до 30 вересня 2025 року. Станом на 4 липня від будівлі ліцею залишився лише фундамент і куба будівельного сміття.




















