Тендерний комітет КП «Інспекція з благоустрою» відмінив торги по придбанню трьох громадських вбиралень, на які планували витратити 930 тисяч гривень.
«Причиною скасування є виявлення Управлінням північного офісу Держаудитслужби в Житомирській області недоліків при проведенні процедури закупівель, які унеможливлюють подальшу процедуру закупівель», – така інформація з’явилася на сайті електронних закупівель ProZorro 15 вересня.
Проект рішення виконавчого комітету Житомирської міської ради «Про розміщення громадських вбиралень на території м. Житомира» опублікували на сайті мерії 17 липня 2017 року.
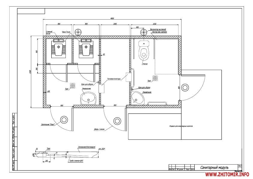
Відкриті торги щодо придбання та розміщення 3 туалетів громадського користування оголосили у серпні 2017 року. Пропозиції подали дві компанії: ПП «СЛАВУТИЧБУД» і ТОВ «Блок Майстер Україна». Остання запропонувала нижчу ціну – 924 тисячі гривень, і стала переможцем аукціону. Проте, під час перевірки документів, поданих переможцем, у Держаудитслужби виникли запитання.
За словами начальника КП «Інспекція з благоустрою» Юрія Юзвинського, попри те, що попередні торги скасували, вони вже оголосили новий тендер. Кінцевий термін подачі тендерних пропозицій – 2 жовтня 2017 року. Посадовець переконує: житомирянам не варто хвилюватися – туалети на Івана Кочерги, Новому Бульварі і Лятошинського будуть встановлені до кінця року.
«Там було декілька зауважень при оформленні документів від Управління північного офісу Держаудитслужби в Житомирській області. Вони нам надіслали лист, ми виїхали до них, узгодили, як воно там повинно бути правильно. Ми оголосили новий тендер, щоб це було прозоро. Є процедура, гроші виділені, ми виявимо переможця, укладемо договір», – зазначив Юзвинський.
Нагадаємо, восени 2014 року придбаний за 100 тис. грн бюджетних коштів модульний туалет встановили у скверику на розі вулиць Івана Кочерги та Великої Бердичівської. Проте простояв він там усього кілька днів, після чого був спалений невідомими.
Як повідомляв Житомир.info, півтори роки тому влада Житомира вважала недоцільним розміщення на вулицях міста біотуалетів, про що відповіла на петицію житомирян, а тодішній радник міського голови Юрій Мойсеєв повідомив, що на купівлю вбиралень місто планує виділити 500 тис. грн. Пла
Планування туалету




















