В этом году активизировалось строительство жилья для житомирских силовиков: прокуратура, полиция и СБУ планируют обеспечить своих сотрудников квартирами в многоэтажных домах.
На земельном участке по адресу: переулок 1-й Гоголевский, 4 находится заброшенный детский сад и когда в апреле этого года в переулок начала заезжать строительная техника, то жители соседних домов возмутились и пришли в горсовет. В результате на заседании горисполкома 20 апреля было принято решение об отмене градостроительных разрешений и ограничений по застройке земельного участка.
5 июля на сайте главного управления Нацполиции в Житомирской области появилось сообщение о том, что в Житомире изучают мнение жителей по поводу строительству детского сада и двух девятиэтажек по переулку Гоголевском.
«4-5 июля жители переулка Первого Гоголевского и прилегающих к нему улиц имели возможность высказать свое мнение по поводу строительства в этом микрорайоне двух жилых домов на 64 квартиры каждый и детского сада на 60 мест. Земельный участок, где запланировано строительство, является государственной собственностью, используемой МВД. В ноября 2015 года УМВД Украины в Житомирской области был заключен договор с инвестором о строительстве трех жилых домов на территории общей площадью 0,84 га. Тогда жители микрорайона высказали пожелание о необходимости обустройства здесь учебного дошкольного учреждения. Поэтому обработав инициативы людей, инвесторы внесли изменения в предыдущий проект жилого комплекса и вынесли на обсуждение жителей микрорайона новые предложения. По разработанному генеральному плану, это детский сад на 60 мест, два жилых 9-этажных дома на 64 квартиры, детские и спортивные площадки, зона отдыха и парковки автотранспорта и другое», - сообщает ГУ Нацполиции.


Схема с сайта ГУНП







Строительство моногэтажки на улице Синельниковская,14 (бывшая Детской Коммуны) возле Центрального стадиона начальник областного управления СБУ Владимир Пахнюк называет «социальным проектом», т.к. застройщики пообещали предоставить 40 квартир участникам АТО – сотрудникам СБУ и помочь в решении социальных проблем школы-интерната №9, которая находится по соседству со стройплощадкой.










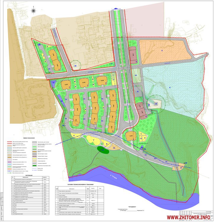
Самой скандальной на сегодняшний день является будущая многоэтажка на Корбутовке с квартирами для сотрудников прокуратуры и обещанным жильем для АТОшников. Напомним, на сессии горсовета 19 мая депутаты согласились на обмен, предложенный областной прокуратурой – земельный участок по ул.Победы, 52 обменяли на 0,56 га на Тетеревском бульваре в районе Корбутовки. Жители соседних многоэтажек выступают против застройки «зеленой зоны», а власти обещают на ближайшем заседании горисполкома (6 июля) предоставить визуализацию, чтобы люди поняли что именно тут строится. Напомним, на сессии горсовета 6 августа 2015 года депутаты утвердили детальный план территории «в районе улицы Черняховского и речки Тетерев».


План, утвержденный на сессии горсовета 6.08.2015









Фото Андрея Дидковского




















